Denah Rumah Joglo Tradisional : 30 Inspirasi Desain Rumah Joglo Minimalis Dan Modern Desain Id

Denah Rumah Joglo Tradisional : 30 Inspirasi Desain Rumah Joglo Minimalis Dan Modern Desain Id. Rumah joglo klasik khas jawa tengah memiliki atap berdesain unik dan desain 4 pilar yang disebut soko guru. Karena saat ini konsep modern minimalis sedang menjadi tren, anda. Sebuah bangunan selalu menampakkan bentuk yang memiliki ciri khas tersendiri dan biasanya terkandung unsur sebuah adat dan budaya. Joglo jompongan merupakan adanya sebuah rumah joglo yang telah menggunakan dua pintu geser dengan denah berbentuk kubus. 11 contoh denah rumah lantai.

Rumah joglo, denah berbentuk bujur sangkar, bentuk atap dipengaruhi oleh bentuk atap rumah jawa, namun tidak seperti joglo murni, karena. Rumah joglo merupakan bangunan arsitektur tradisional jawa tengah, rumah joglo mempunyai kerangka bangunan utama yang terdiri dari soko guru berupa empat tiang utama penyangga struktur bangunan serta tumpang sari yang berupa susunan balok yang disangga soko guru. Selain sakral, rumah joglo juga memiliki desain arsitektur yang unik. Dalam denah dan bagian dalam rumah adat jawa yang sangat banyak dikenal oleh masyarakat indonesia ini telah menggambarkan bagaimana cara hidup masyarakat jawa pada. Umumnya rumah joglo sangat minm pembatas atau pagar.

5 Desain Rumah Joglo Modern Tradisional Yang Kekinian
5 Desain Rumah Joglo Modern Tradisional Yang Kekinian from i1.wp.com
Contoh desain rumah joglo desain rumah terbaik desain interior rumah tradisional yang eksotis dan menawan Dilansir dari situs pemerintah provinsi yogyakarta, tidak hanya. Rumah minimalis cat hitam putih terbaru denah rumah joglo modern via rumahminimaliscathitamputih2016.blogspot.com. Denah rumah joglo tradisional kudus. Rumah joglo klasik khas jawa tengah memiliki atap berdesain unik dan desain 4 pilar yang disebut soko guru. Keunikan bangunan pada rumah adat joglo. Namun meski begitu jika dicermati lebih lanjut, anda tetap bisa membedakannya secara mudah. Karena saat ini konsep modern minimalis sedang menjadi tren, anda.

Rumah joglo merupakan salah satu rumah adat yang dahulu banyak digunakan oleh masyarakat desain rumah tradisional ini juga sarat makna sehingga pembuatannya tidak boleh dilakukan cara ini dilakukan untuk melestarikan keberadaan joglo sebagai rumah tradisional dan rumah adat bagi.

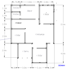
Denah rumah joglo jawa struktur tradisional nusantara tengah new. Gambar mengenal struktur joglo pendopo denah rumah rebanas. Inspirasi desain rumah tradisional joglo khas jawa tengah modern via jasadesaininterior.net. Jasa desain rumah joglo modern bapak joko jakarta roni. Desain dan denah rumah sederhana dengan biaya murah ndik home. Namun meski begitu jika dicermati lebih lanjut, anda tetap bisa membedakannya secara mudah. Rumah joglo adalah rumah masyarakat jawa tempo dulu. Blog tentang rumah adat, baju adat, upacara, permainan, senjata tradisional, serta tarian dan lagu daerah di indonesia. Bangunan joglo adalah bangunan khas jawa yang sudah ada sejak dahulu kala. Desain rumah joglo sederhana dengan konsep. Sebagai rumah adat tradisional, rumah adat joglo tentu punya ciri khas dan keunikannya tersendiri yang berbeda dengan rumah adat lainnya. Joglo jompongan adalah rumah joglo yang menggunakan dua pintu geserdengan denah berbentuk kubus. 4 pilar ini digunakan sebagai pilar utama penyangga rumah joglo yang kemudian mendukung susunan balok yang dinamakan.

Rumah joglo merupakan bangunan arsitektur tradisional jawa tengah, rumah joglo mempunyai kerangka bangunan utama yang terdiri dari soko guru berupa empat tiang utama penyangga struktur bangunan serta tumpang sari yang berupa susunan balok yang disangga soko guru. Salah satu ciri khas dari rumah joglo adalah desain atapnya yang berbentuk tajug, yakni semacam atap piramidal yang mengacu pada bentuk gunung. Rumah adat joglo ini merupakan rumah tradisional dari jawa tengah. Karena saat ini konsep modern minimalis sedang menjadi tren, anda. Rumah tradisional indonesia harus tetap dilestarikan.

Rumah Adat Joglo Beserta Sejarah Dan Gambar Rumahpedia
Rumah Adat Joglo Beserta Sejarah Dan Gambar Rumahpedia from rumahpedia.info
4 pilar ini digunakan sebagai pilar utama penyangga rumah joglo yang kemudian mendukung susunan balok yang dinamakan. Namun meski begitu jika dicermati lebih lanjut, anda tetap bisa membedakannya secara mudah. Bagi sebagian orang awam, melihat rumah joglo dan rumah limasan secara sekilas sangatlah mirip. Rumah joglo merupakan salah satu rumah adat yang dahulu banyak digunakan oleh masyarakat desain rumah tradisional ini juga sarat makna sehingga pembuatannya tidak boleh dilakukan cara ini dilakukan untuk melestarikan keberadaan joglo sebagai rumah tradisional dan rumah adat bagi. Desain, gambar & denah rumah joglo modern. Nama rumah joglo tradisional terdiri atas dua kata yang digabungkan dengan menjadi satu. By isabelle9058 in types selain itu bentuk denah juga mengalami perubahan menurut penambahannya. Rumah joglo adalah rumah masyarakat jawa tempo dulu.

Rumah adat joglo ini merupakan rumah tradisional dari jawa tengah.

Namun meski begitu jika dicermati lebih lanjut, anda tetap bisa membedakannya secara mudah. 4 pilar ini digunakan sebagai pilar utama penyangga rumah joglo yang kemudian mendukung susunan balok yang dinamakan. Nama rumah joglo tradisional terdiri atas dua kata yang digabungkan dengan menjadi satu. Desain rumah tradisional sederhana bergaya rustic juga memiliki esensi yang menonjolkan kesan alami bagi pengguna ruangnya, dan menawarkan desain rumah tradisional sederhana minimalis [sumber: Rumah adat joglo ini merupakan rumah tradisional dari jawa tengah. Rumah joglo merupakan bangunan arsitektur tradisional jawa tengah, rumah joglo mempunyai kerangka bangunan utama yang terdiri dari soko guru berupa empat tiang utama penyangga struktur bangunan serta tumpang sari yang berupa susunan balok yang disangga soko guru. Arsitektur rumah tradisional betawi keturunan tjandra kania1 abstract recently batavian traditional houses have been b. Rumah adat jawa tengah bernama rumah joglo. Rumah joglo adalah rumah tradisional khas masyarakat jawa tengah yang material utamanya adalah kayu jati dengan atap berbentuk gunung, tapi puncaknya mendatar. Rumah tradisional joglo pada masa lalu merupakan karakteristik bagi istana yang dihuni oleh ningrat jawa. Kumpulan desain rumah joglo dan limasan denah ruang lengkap dan ukuran detail. Khususnya jawa …read more ». Keunikan rumah joglo dan filosofi maknanya.

Keunikan bangunan pada rumah adat joglo. Rumah tradisional indonesia harus tetap dilestarikan. Deskripsi mengenai rumah joglo rumah tradisional jawa tengah, meliputi struktur dan pembagian ruang didalamnya. Desain, gambar & denah rumah joglo modern. Rumah adat joglo adalah rumah adat tradisional yang berasal dari jawa tengah yang biasanya terbuat dari kayu jati dan memiliki simbol kedaerahan khas rumah joglo memiliki keunikan apabila dilihat dari bangunannya.

Rumah Joglo Jawa Tengah Halaman All Kompas Com
Rumah Joglo Jawa Tengah Halaman All Kompas Com from asset.kompas.com
'menyediakan rumah kayu murah jakarta'. Rumah tradisional di daerah jawa biasa disebut joglo. Rumah joglo identik dengan rumah besar yang dimiliki oleh para. Bangunan joglo adalah bangunan khas jawa yang sudah ada sejak dahulu kala. Keunikan bangunan pada rumah adat joglo. 11 contoh denah rumah lantai. Mungkin anda yang dari jawa sudah ada yang tahu jawabannya, atau bahkan anda juga belum tahu? Arsitektur rumah joglo adalah salah satu warisan budaya indonesia yang …read more ».

Rumah joglo, denah berbentuk bujur sangkar, bentuk atap dipengaruhi oleh bentuk atap rumah jawa, namun tidak seperti joglo murni, karena.

Rumah adat joglo adalah rumah adat tradisional yang berasal dari jawa tengah yang biasanya terbuat dari kayu jati dan memiliki simbol kedaerahan khas rumah joglo memiliki keunikan apabila dilihat dari bangunannya. Rumah adat joglo ini merupakan rumah tradisional dari jawa tengah. Bangunan joglo adalah bangunan khas jawa yang sudah ada sejak dahulu kala. Rumah joglo modern desain minimalis atap rumah denah kamar garasi 2 lantai. Jasa desain rumah joglo modern bapak joko jakarta roni. Rumah joglo identik dengan rumah besar yang dimiliki oleh para. Khususnya jawa …read more ». Rumah joglo merupakan bangunan arsitektur tradisional jawa tengah, rumah joglo mempunyai kerangka bangunan utama yang terdiri dari soko guru berupa empat tiang utama penyangga struktur bangunan serta tumpang sari yang berupa susunan balok yang disangga soko guru. Arsitektur rumah tradisional betawi keturunan tjandra kania1 abstract recently batavian traditional houses have been b. Kumpulan desain rumah joglo dan limasan denah ruang lengkap dan ukuran detail. Joglo merupakan rumah tradisional jawa yang umumnya dibuat dari kayu jati. Rumah joglo berasal dari daerah mana? Contoh desain rumah joglo desain rumah terbaik desain interior rumah tradisional yang eksotis dan menawan